Sept 26th was a vert great day in our community , we had a great day and nearly 300 men , women and children showed up. The weather was cold but the spirit was warm and at the end of the day you people made our town a better place. Here are a couple of pics from Captured Memories Studios courtsey of Amy Fuery.
Click on the build day link on the right for a sample slide show from the pics that Amy took that day. She took a lot but I am limited to what I can put here due to size restrictions.
Let Them Be Kids
Let Them Be Kids is all volunteer non-profit organization created to build community capacity on the grassroots level, while building playgrounds, skate parks and fitness parks across Canada. These projects leave a legacy of community members who are inspired and better equipped to lay a strong foundation for a brighter tomorrow.
Town Flag
First Pitch Money at Work
Thanks to " First Pitch " for the grant that we received this year. We brought softball equipment for the kids and did some major repairs to the ball field.
Back Stop Before and After
Recreation Building
Thanks to everyone who came out and helped raise the building to the point that it is now. Thanks to the people that finished the bleacher repairs and help with the playground repairs.
Building
Community Project-----Spring 2010
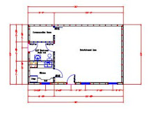
Pending approval from all governing bodies the Avondale Recreation will be building a building to compliment the ballfield and playground area. The building will have much needed washroom facilities and a source of electricity and water for outdoor events.
There will not be a massive fundraising campaign like last year but we will need some skilled labor if you have some to offer.
Below is a preliminary pic of the building. More details to follow.
There will not be a massive fundraising campaign like last year but we will need some skilled labor if you have some to offer.
Below is a preliminary pic of the building. More details to follow.
Memory Bench
Thanks for the Thresa Grace for the support of our commitment to improve recreational infrastructure in our town. As a thank you we installed a Memory Bench in memory of her husband Ben.
Recreation Building
Kids Breaking Ground
there is a shovel in there somewhere !!
BUILD DAY
Tuesday, September 29, 2009
Wednesday, June 17, 2009
Dot-Mocracy at Immaculate Conception
On Thursday June 18 , the students of Immaculate Conception will vote on what they would like to see in a playground design. For those kids who do not go to school the material will be at the town hall in the evening. Check out photos from Dot Mocracy http://www.flickr.com/photos/39780916@N08/show/
Subscribe to:
Posts (Atom)